Faulkner Street Hoole, Chester
Please enter your starting address in the form input below.
Please refresh the page if trying an alernate address.
Request A Viewing
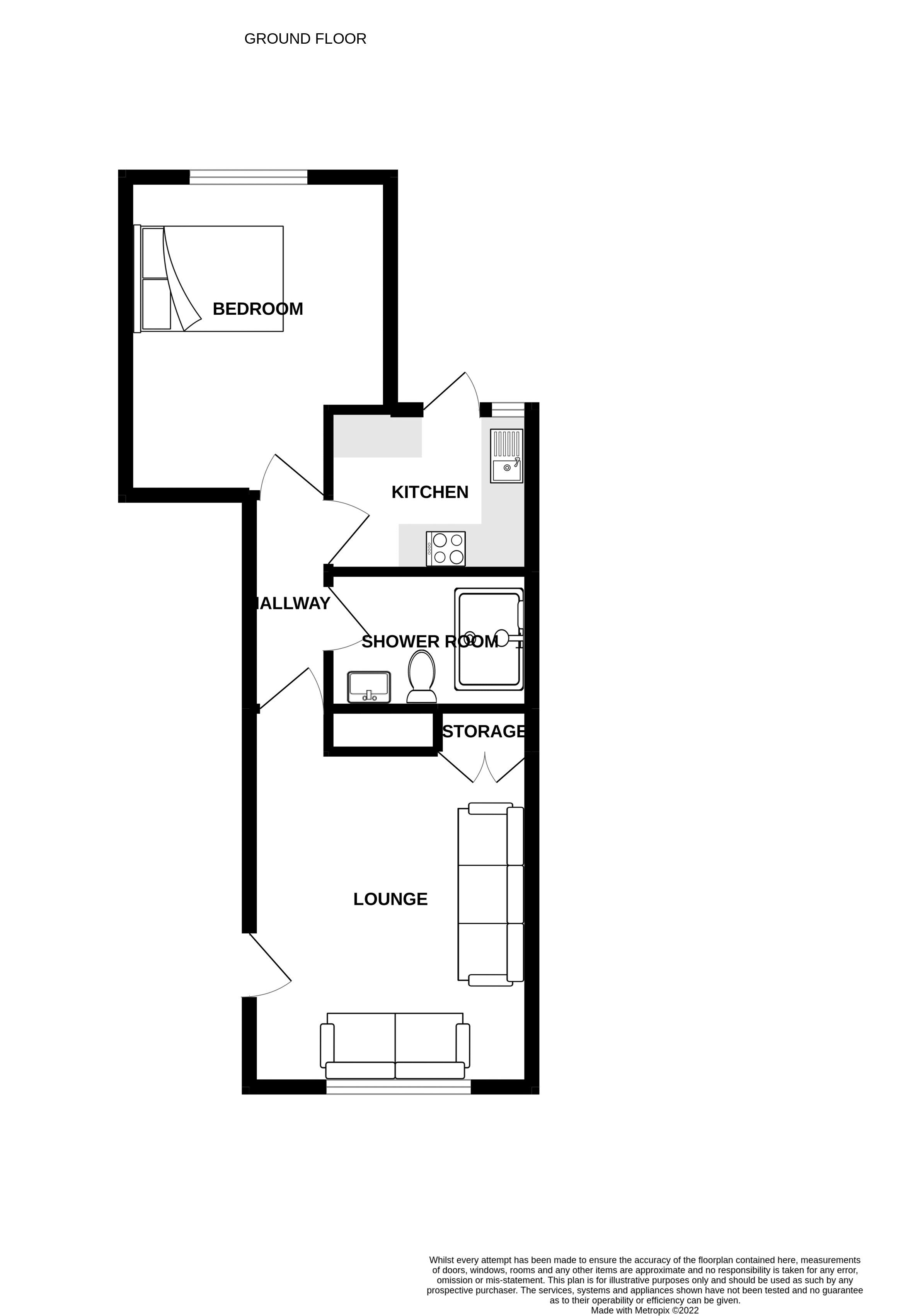
Platinum are pleased to offer to let this recently renovated one bedroom first floor flat. Found within the heart of the charming village of Hoole, this outstanding property boasts contemporary kitchen & shower room and benefits from gas central heating & UPVC double glazing. Offering ideal living accommodation, the flat briefly comprises: Hall, Landing, Lounge/Kitchen/Diner, One Bedroom and Shower Room.
One applicant must be earning £27,000 per annum.
Chester CH2 3BD
| Name | Location | Type | Distance |
|---|---|---|---|





