Peckforton Drive Great Sutton, Ellesmere Port
Please enter your starting address in the form input below.
Please refresh the page if trying an alernate address.
Request A Viewing
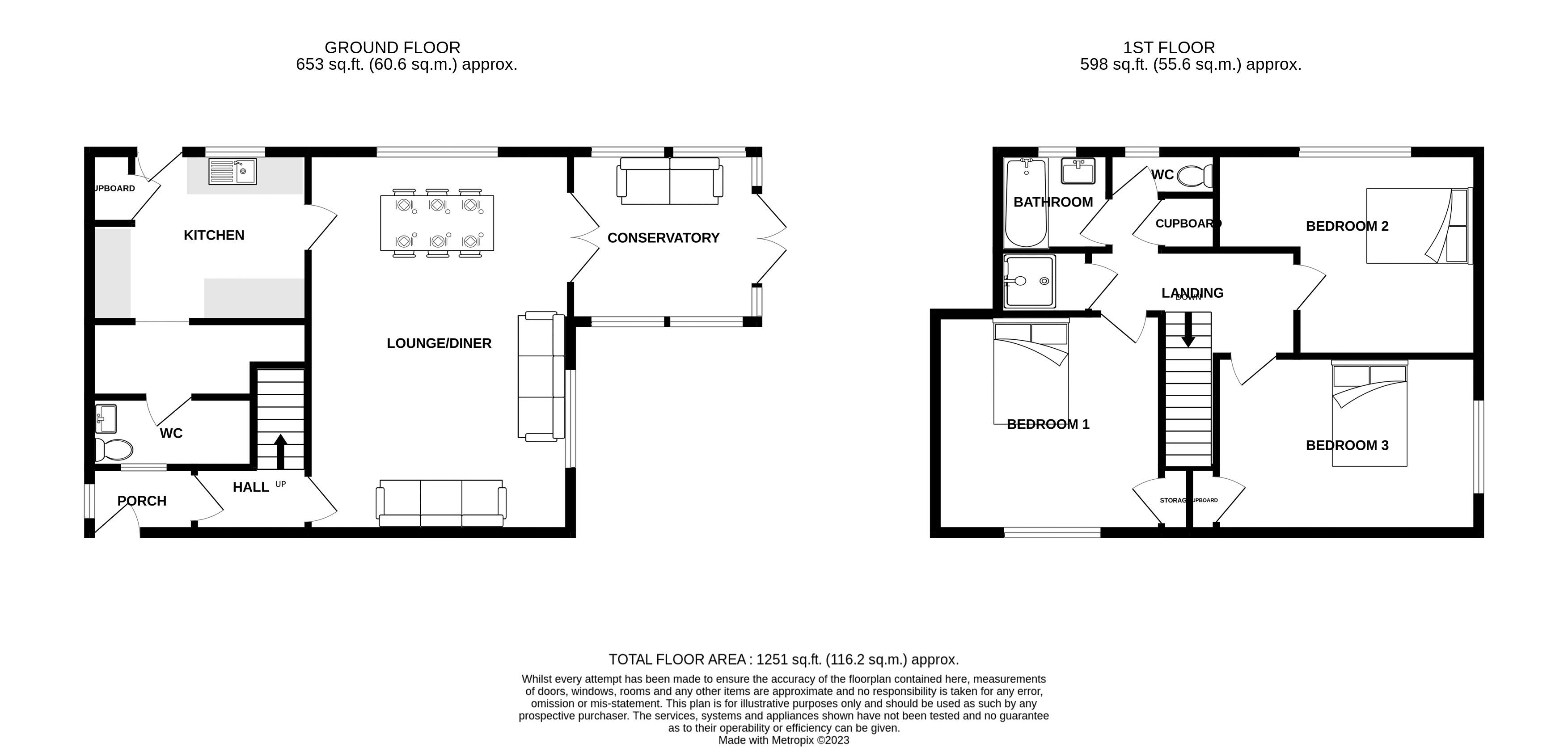
Platinum are pleased to offer onto the market this delightful three bedroom terrace house. Located in the popular location of Great Sutton, this splendid property benefits from UPVC double glazing, large garden and boasts three good size bedrooms. Offering ideal living accommodation, the property briefly comprises: Porch, Entrance Hall, Lounge/Diner, Conservatory, Kitchen, Downstairs Cloakroom, Landing, Three Bedrooms, Shower, WC, Bathroom with Huge side and Rear Garden,
Ellesmere Port CH66 2QJ
Porch
Entrance Hall
Lounge/Diner
21' 0'' x 14' 6'' (6.40m x 4.42m)
Conservatory
9' 4'' x 10' 3'' (2.84m x 3.12m)
Kitchen
8' 4'' x 12' 1'' (2.54m x 3.68m)
WC
Landing
Bedroom One
12' 1'' x 12' 9'' (3.68m x 3.88m)
Bedroom Two
9' 4'' x 14' 1'' (2.84m x 4.29m)
Bedroom Three
11' 3'' x 12' 6'' (3.43m x 3.81m) (max 'L' shaped)
Bathroom
5' 5'' x 6' 1'' (1.65m x 1.85m)
WC
Shower
Outside
Ellesmere Port CH66 2QJ
| Name | Location | Type | Distance |
|---|---|---|---|





