The Manor House Great Sutton, Ellesmere Port
Please enter your starting address in the form input below.
Please refresh the page if trying an alernate address.
Request A Viewing
NO ONWARD CHAIN. A charming three-bedroom house forming part of an elegant 1840s manor house, set within a highly sought-after location.
This beautifully presented home seamlessly blends period character with modern living, retaining a wealth of original features that reflects it’s heritage, while offering well-balanced accommodation throughout.
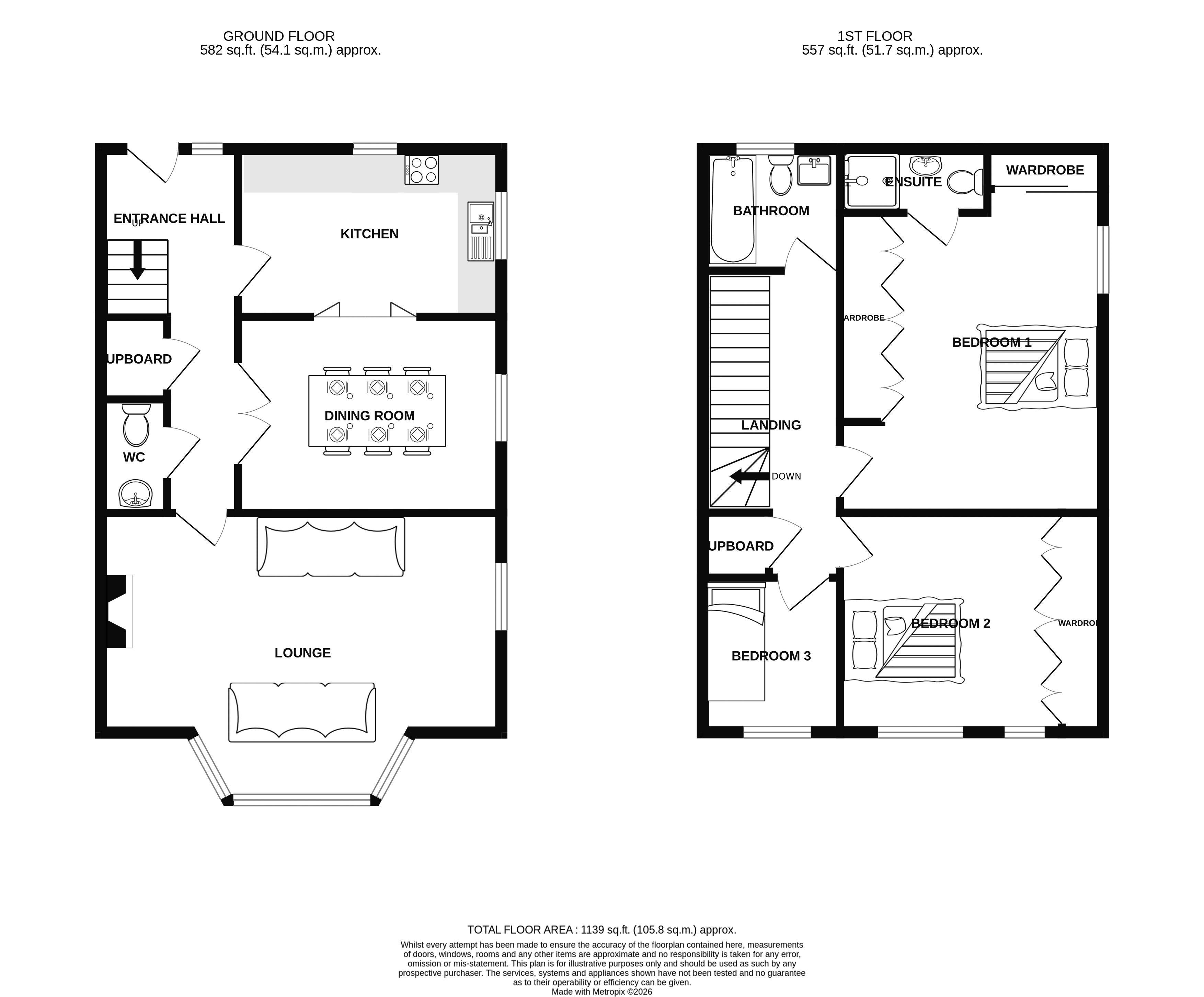
The ground floor comprises spacious entrance hall, two inviting reception rooms, each showcasing characterful details and providing versatile living and entertaining space. A thoughtfully designed modern kitchen, fitted in keeping with the property’s style, offers both practicality and charm. A convenient downstairs cloakroom completes the ground floor accommodation.
To the first floor, the property offers three bedrooms, including a superb principal bedroom benefiting from a stylish en-suite. The remaining bedrooms are served by a well-appointed family bathroom.
Externally, the property enjoys its position within this desirable setting, two shared large patio areas, two allocated parking spaces (one being under cover) and visitors parking to the front.
The property has the added benefit of a truly striking, grand communal entrance hall, showcasing the scale and character synonymous with a fine 1840s manor house.
Early viewing is highly recommended to fully appreciate the charm and setting of this unique home.
Ellesmere Port CH66 2EW
Entrance Hall
Downstairs Cloakroom
Lounge
14' 6'' x 19' 7'' (4.42m x 5.96m) (max into bay window)
Dining Room
9' 7'' x 12' 10'' (2.92m x 3.91m)
Kitchen
8' 2'' x 12' 10'' (2.49m x 3.91m)
Landing
Bedroom One
17' 9'' x 13' 5'' (5.41m x 4.09m)
Bedroom Two
11' 5'' x 13' 5'' (3.48m x 4.09m)
Bedroom Three
7' 7'' x 7' 1'' (2.31m x 2.16m)
Bathroom
5' 9'' x 6' 8'' (1.75m x 2.03m)
Outside
Management Details
The current owner pays circa £2570.00 per annum.
Ellesmere Port CH66 2EW
| Name | Location | Type | Distance |
|---|---|---|---|





