Wetherby Way Little Sutton, Ellesmere Port
Please enter your starting address in the form input below.
Please refresh the page if trying an alernate address.
Request A Viewing
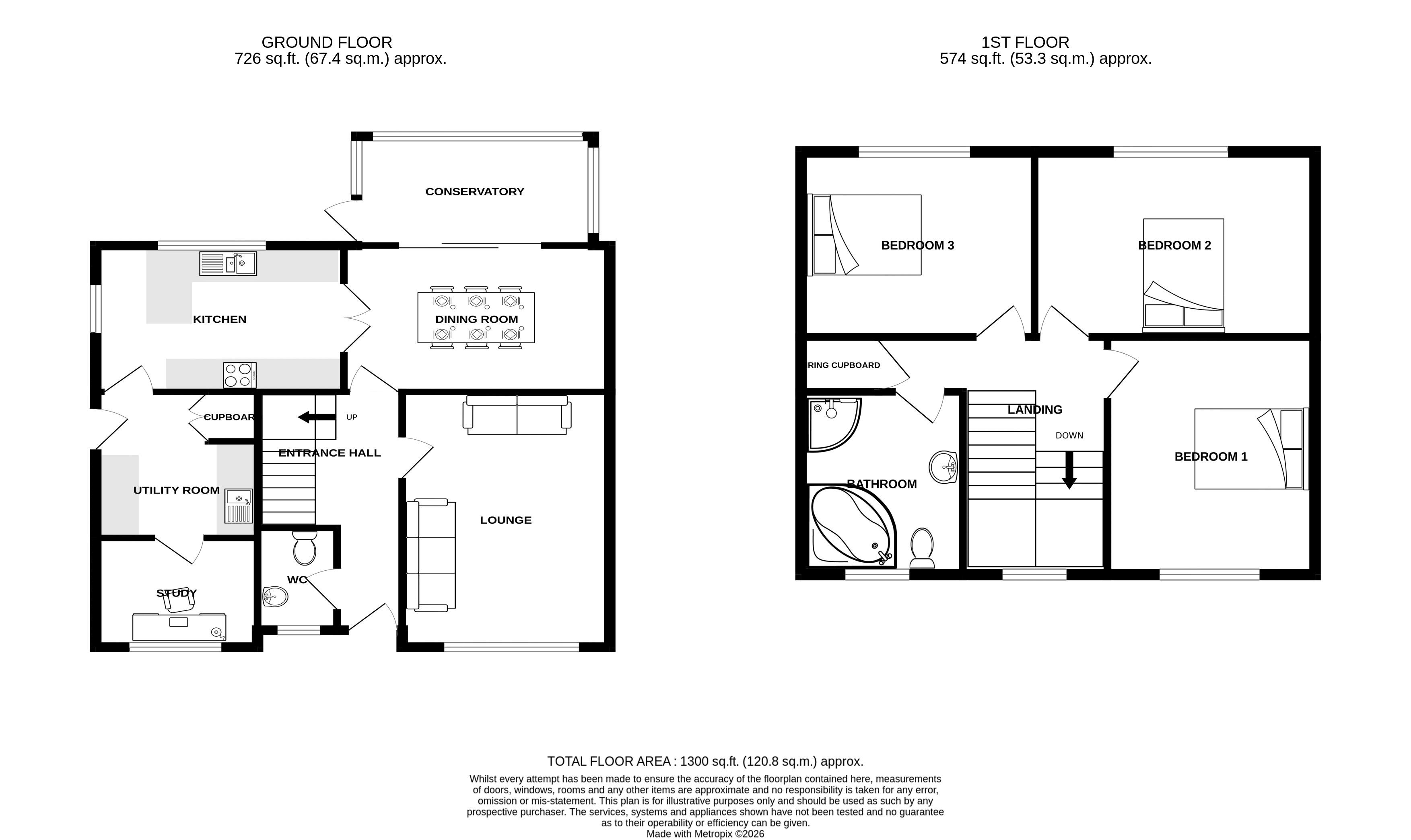
NO ONWARD CHAIN. Platinum are delighted to offer onto the market this delightful three bedroom detached family home. Situated within the highly sought after location of Little Sutton, this superb property boasts contemporary kitchen, downstairs cloakroom, four piece bathroom, three good size bedrooms and utility room. Offering fantastic family living accommodation, the property briefly comprises: Entrance Hall, Downstairs Cloakroom, Lounge, Dining Room, Conservatory, Kitchen, Utility Room, Study, Landing, Three Bedrooms, Bathroom, Artist in Concrete Driveway and pleasant front & rear Gardens.
Ellesmere Port CH66 4TG
Entrance Hall
Downstairs Cloakroom
Lounge
15' 5'' x 10' 8'' (4.70m x 3.25m)
Dining Room
9' 1'' x 14' 0'' (2.77m x 4.26m)
Conservatory
6' 9'' x 11' 3'' (2.06m x 3.43m)
Kitchen
9' 1'' x 12' 7'' (2.77m x 3.83m)
Utility Room
9' 0'' x 7' 8'' (2.74m x 2.34m)
Study
6' 9'' x 7' 8'' (2.06m x 2.34m)
Landing
Bedroom One
10' 8'' x 11' 2'' (3.25m x 3.40m)
Bedroom Two
9' 3'' x 14' 5'' (2.82m x 4.39m)
Bedroom Three
9' 3'' x 12' 2'' (2.82m x 3.71m)
Bathroom
7' 7'' x 8' 0'' (2.31m x 2.44m)
Outside
Ellesmere Port CH66 4TG
| Name | Location | Type | Distance |
|---|---|---|---|





