Wavertree Court Rivacre, Ellesmere Port
Please enter your starting address in the form input below.
Please refresh the page if trying an alernate address.
Request A Viewing
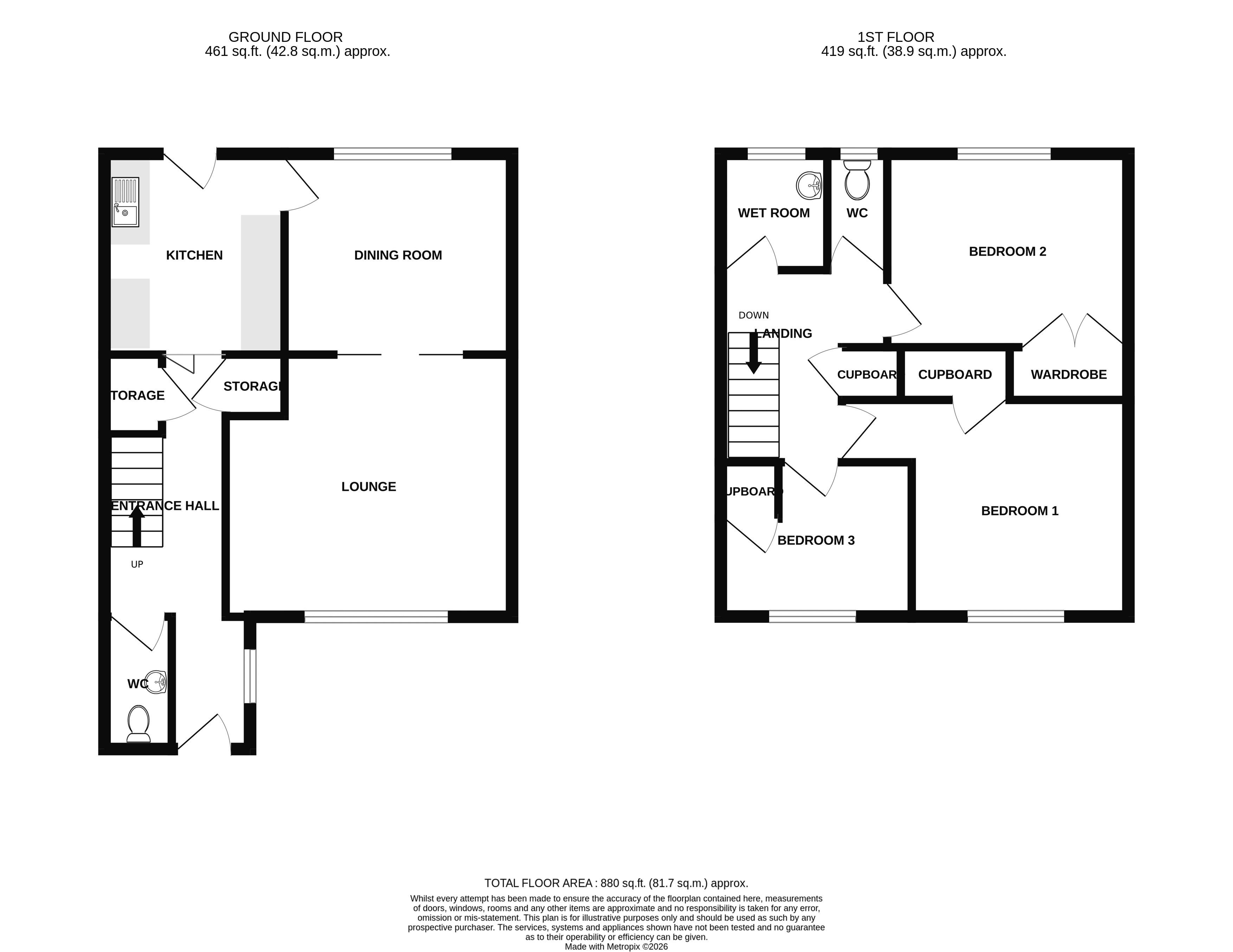
NO ONWARD CHAIN Platinum are pleased to offer onto the market this spacious three bedroom terrace house. Located within the sought after location of Rivacre, this delightful property benefits from a downstairs cloakroom, combination boiler and boasts UPVC double glazing. Offering ideal living accommodation, this splendid property briefly comprises: Entrance Hall, Downstairs Cloakroom, Lounge, Kitchen, Dining Room, Landing, Three Bedrooms, Wet Room, WC, Carport and front & rear Gardens.
Ellesmere Port CH66 1RN
Entrance Hall
Downstairs Cloakroom
Kitchen
9' 6'' x 8' 5'' (2.89m x 2.56m)
Dining Room
9' 6'' x 10' 8'' (2.89m x 3.25m)
Lounge
12' 4'' x 13' 6'' (3.76m x 4.11m)
Landing
Bedroom One
10' 0'' x 10' 0'' (3.05m x 3.05m)
Bedroom Two
9' 8'' x 11' 4'' (2.94m x 3.45m)
Bedroom Three
7' 1'' x 9' 6'' (2.16m x 2.89m) (max)
Bathroom
5' 5'' x 4' 8'' (1.65m x 1.42m)
WC
Outside
Ellesmere Port CH66 1RN
| Name | Location | Type | Distance |
|---|---|---|---|





