Robinson Road, Ellesmere Port
Please enter your starting address in the form input below.
Please refresh the page if trying an alernate address.
Request A Viewing
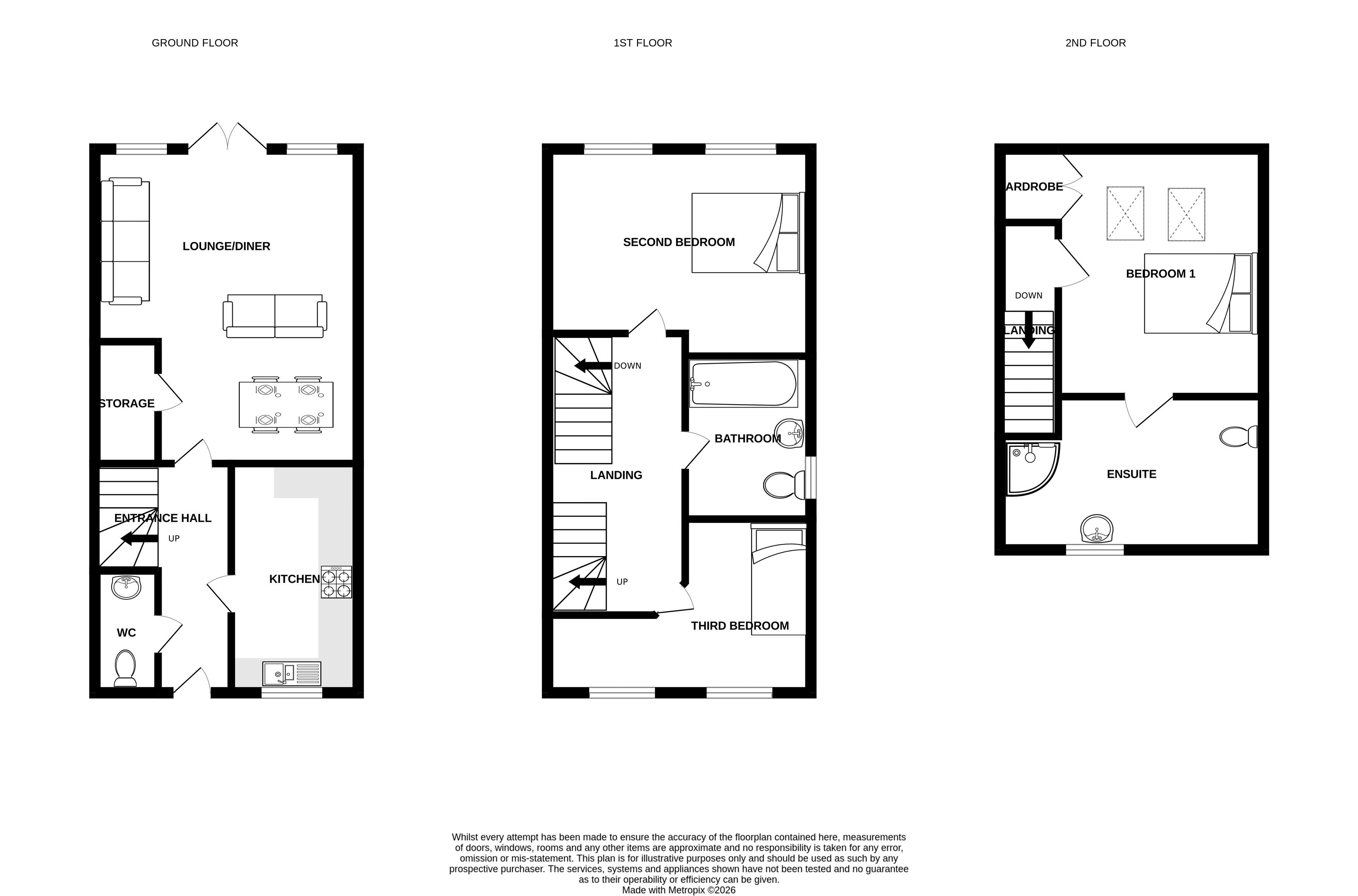
NO ONWARD CHAIN. Platinum are delighted to offer onto the market this superb three bedroom semi detached property split over three floors. The property can be found on the popular development of 'Great Hall Park', which is within easy reach of a range of local amenities and motorway networks, this well presented property boasts a downstairs cloakroom, contemporary kitchen & bathroom and benefits from en-suite principal bedroom. Offering ideal living accommodation, the property comprises: Entrance Hall, Downstairs Cloakroom, Lounge/Diner, Kitchen, Landing, Three Bedrooms, En-Suite Principal Bedroom, Bathroom, pleasant front & rear Gardens and Driveways to the front & rear of the property.
Ellesmere Port CH65 5FE
Entrance Hall
Lounge/Diner
15' 7'' x 12' 8'' (4.75m x 3.86m) (max)
Kitchen
10' 9'' x 6' 0'' (3.27m x 1.83m)
Landing
Bedroom Two
12' 10'' x 9' 5'' (3.91m x 2.87m) (max)
Bedroom Three
12' 10'' x 10' 2'' (3.91m x 3.10m) (max)
Bathroom
6' 11'' x 5' 8'' (2.11m x 1.73m)
Bedroom One
12' 10'' x 12' 5'' (3.91m x 3.78m) (max)
En-Suite
12' 10'' x 7' 11'' (3.91m x 2.41m)
Outside
Leasehold Information
Service charge - £101.95 Ground Rent - £151.64 circa 987 years remaining on lease
Ellesmere Port CH65 5FE
| Name | Location | Type | Distance |
|---|---|---|---|





