St. Kilda Close Stanney Oaks, Ellesmere Port
Please enter your starting address in the form input below.
Please refresh the page if trying an alernate address.
Request A Viewing
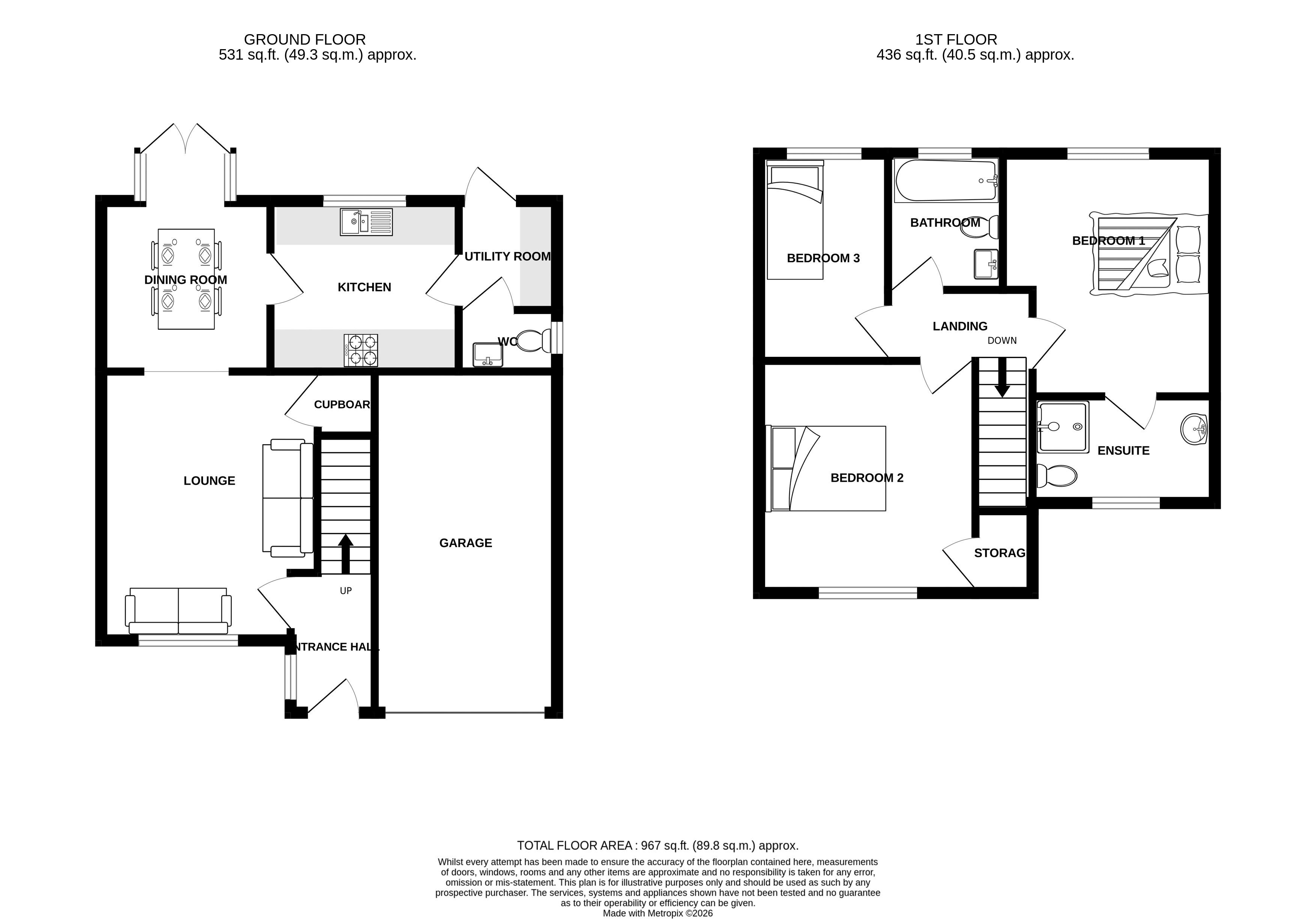
Platinum are pleased to offer onto the market this superbly presented three bedroom detached family home. Found on the highly popular development of Stanney Oaks, the property boasts an en-suite principal bedroom, contemporary kitchen & utility room and benefits from a downstairs cloakroom & modern bathroom. Offering fantastic family living accommodation, the property briefly comprises: Entrance Hall, Lounge, Dining Room, Kitchen, Utility Room, Downstairs Cloakroom, Landing, Three Bedrooms, En-Suite, Bathroom, Artist in Concrete Driveway leading to single Garage providing off road parking and pleasant rear Garden.
Ellesmere Port CH65 9LL
Entrance Hall
Lounge
13' 1'' x 10' 7'' (3.98m x 3.22m) (max)
Dining Room
8' 3'' x 10' 7'' (2.51m x 3.22m) (max into bay window)
Kitchen
8' 3'' x 9' 2'' (2.51m x 2.79m)
Utility Room
4' 9'' x 4' 9'' (1.45m x 1.45m)
Downstairs Cloakroom
Landing
Bedroom One
11' 7'' x 10' 5'' (3.53m x 3.17m) (max)
En-Suite
5' 2'' x 8' 8'' (1.57m x 2.64m)
Bedroom Two
11' 4'' x 10' 6'' (3.45m x 3.20m)
Bedroom Three
10' 1'' x 6' 3'' (3.07m x 1.90m)
Bathroom
6' 8'' x 5' 6'' (2.03m x 1.68m)
Outside
Ellesmere Port CH65 9LL
| Name | Location | Type | Distance |
|---|---|---|---|





