Wilmslow Drive Great Sutton, Ellesmere Port
Please enter your starting address in the form input below.
Please refresh the page if trying an alernate address.
Request A Viewing
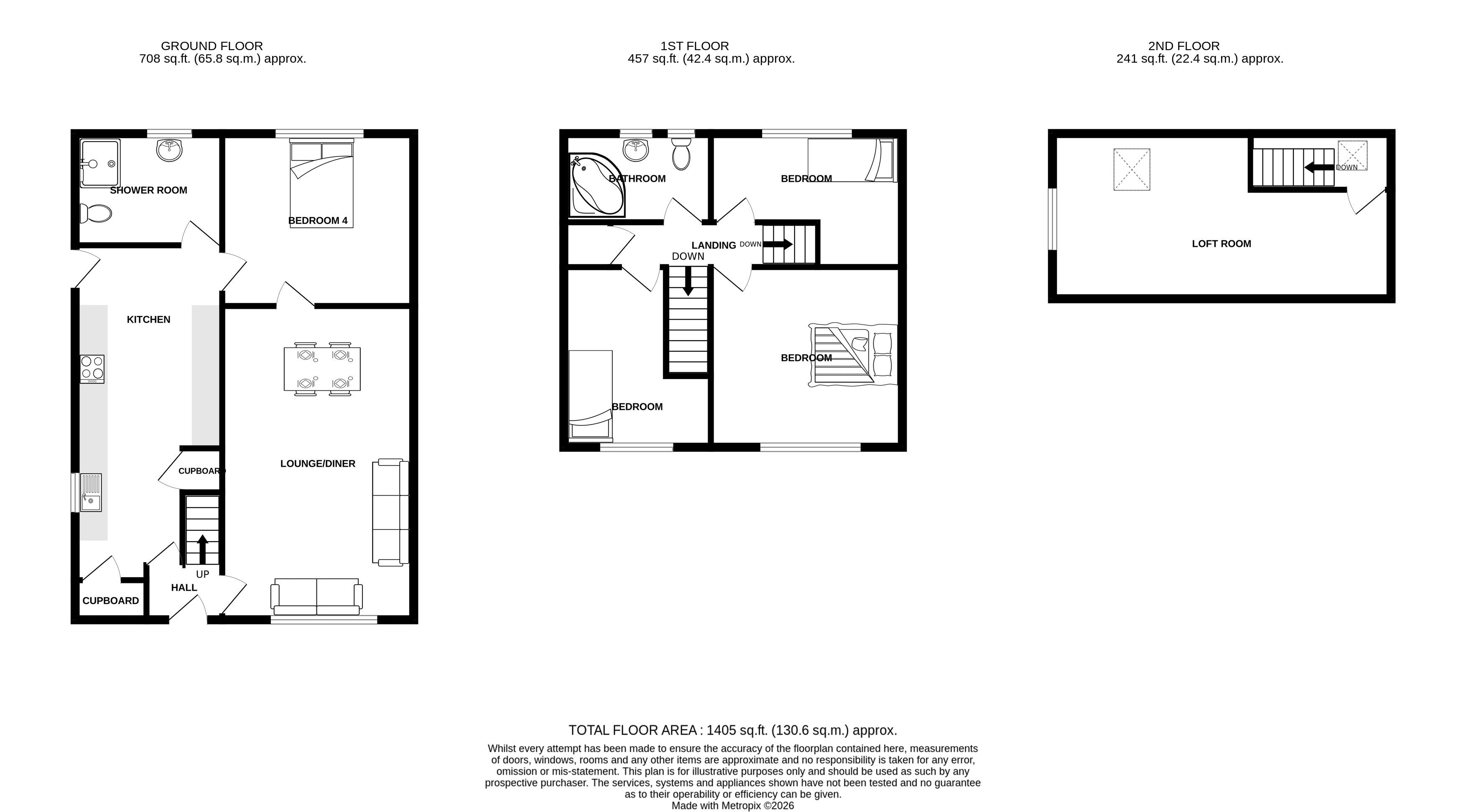
Platinum are pleased to offer onto the market this extended four bedroom end of terrace house. Located within the sought after location of Great Sutton, this superb property benefits from contemporary kitchen, four good size bedrooms and boasts a combination boiler & modern bathroom. Offering ideal living accommodation, the property briefly comprises: Entrance Hall, Lounge/Diner, Kitchen, Landing, Four Bedrooms, Shower Room, Bathroom, Loft Room, Artist in concrete Driveway and rear Garden.
Ellesmere Port CH66 3JL
Entrance Hall
Lounge/Diner
20' 8'' x 11' 10'' (6.29m x 3.60m)
Kitchen
22' 3'' x 10' 2'' (6.78m x 3.10m) (max)
Bedroom Four
11' 4'' x 11' 9'' (3.45m x 3.58m)
Shower Room
7' 2'' x 8' 0'' (2.18m x 2.44m)
Landing
Landing
Bedroom One
11' 5'' x 12' 0'' (3.48m x 3.65m)
Bedroom Two
9' 0'' x 13' 1'' (2.74m x 3.98m) (max)
Bedroom Three
11' 5'' x 9' 4'' (3.48m x 2.84m) (max)
Bathroom
5' 4'' x 8' 3'' (1.62m x 2.51m)
Loft Room
11' 6'' x 21' 9'' (3.50m x 6.62m) (max)
Outside
Ellesmere Port CH66 3JL
| Name | Location | Type | Distance |
|---|---|---|---|





