Standingwood Road Rossmore, Ellesmere Port
Please enter your starting address in the form input below.
Please refresh the page if trying an alernate address.
Request A Viewing
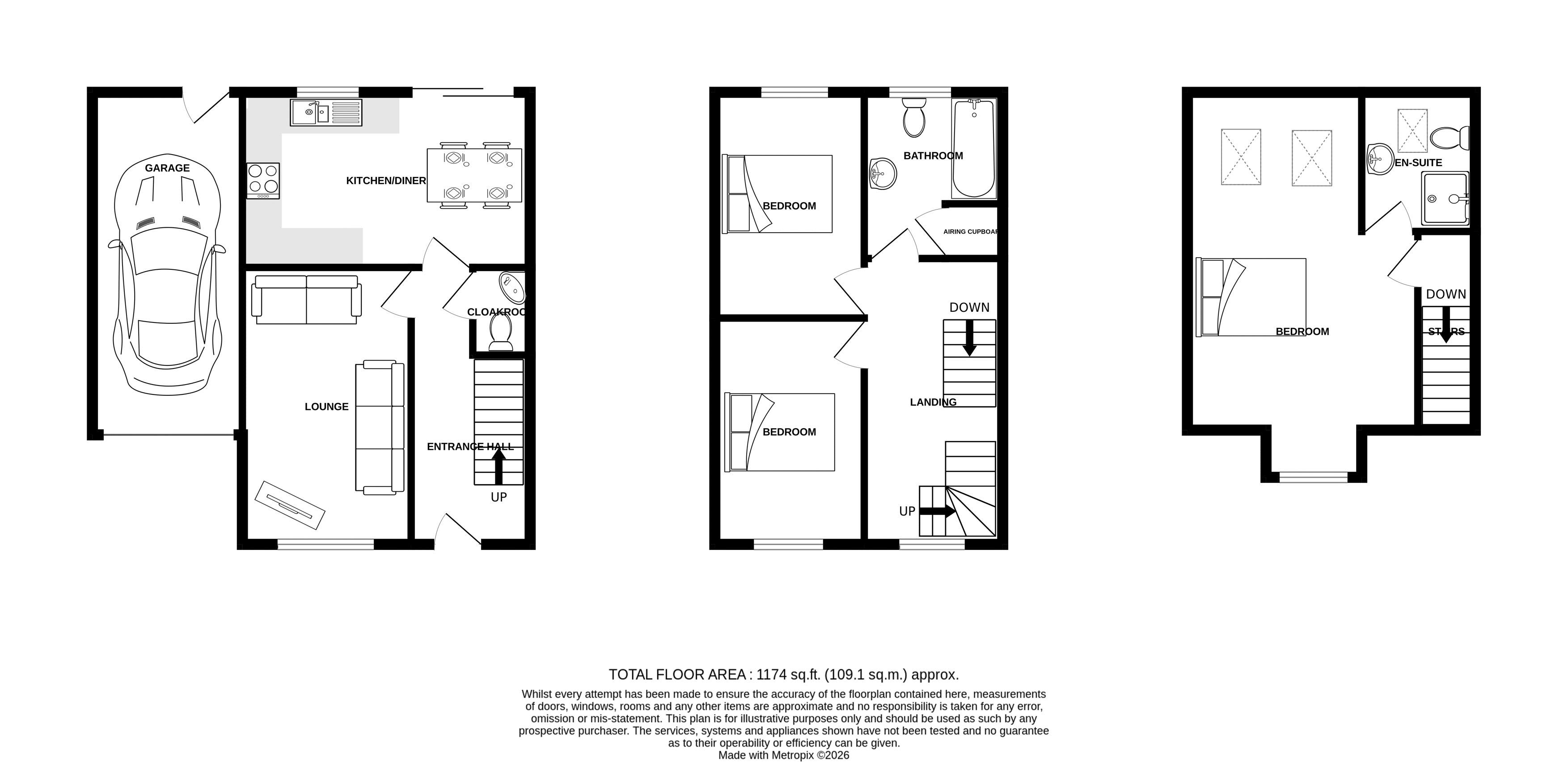
Platinum are delighted to offer onto the market this splendid three bedroom end townhouse. Split over three floors, this delightful property can be found on a sought after development, boasting a downstairs cloakroom, newly fitted en-suite master bedroom and benefiting from a garage & three double bedrooms. Offering ideal family living accommodation, the property briefly comprises: Entrance Hall, Downstairs Cloakroom, Lounge, Kitchen/Diner, Landing, Three Bedrooms, En-Suite Master Bedroom, Bathroom, Garden and Driveway leading to Single Garage.
Ellesmere Port CH65 3AG
Entrance Hall
Downstairs Cloakroom
Lounge
14' 9'' x 8' 6'' (4.49m x 2.59m)
Kitchen/Diner
9' 4'' x 15' 4'' (2.84m x 4.67m)
Landing
Bedroom
12' 2'' x 8' 0'' (3.71m x 2.44m)
Bedroom
12' 2'' x 8' 0'' (3.71m x 2.44m)
Bathroom
8' 7'' x 7' 1'' (2.61m x 2.16m)
Bedroom
19' 7'' x 12' 2'' (5.96m x 3.71m)
En-suite
7' 6'' x 6' 2'' (2.28m x 1.88m)
Outside
Lease Details
Lease term is 999 years from 2005 which means there are 978 years left. The ground rent is payable to Peel L & P Investments (North) Limited and is £100 per annum. The service charge is £114 per annum payable to HLM Property Management.
Ellesmere Port CH65 3AG
| Name | Location | Type | Distance |
|---|---|---|---|





