Overpool Road Whitby, Ellesmere Port
Please enter your starting address in the form input below.
Please refresh the page if trying an alernate address.
Request A Viewing
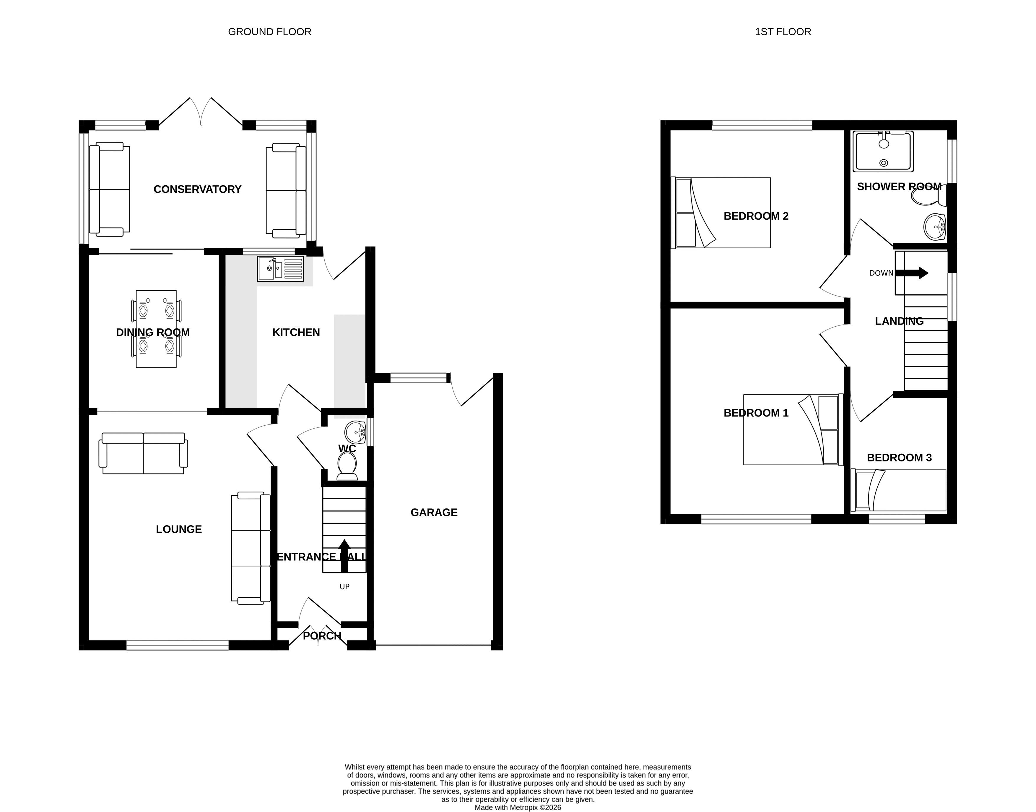
NO ONWARD CHAIN. Platinum are pleased to offer onto the market this delightful three bedroom semi detached property. Located within the highly sought after location of Whitby, this pleasing property benefits from a garage, good size rear garden and boasts a combination boiler. Offering ideal family living accommodation, the property briefly comprises: Entrance Hall, Downstairs Cloakroom, Lounge, Dining Room, Conservatory, Kitchen, Landing, Three Bedrooms, Shower Room, Driveway, Garage and Rear Garden.
Ellesmere Port CH66 2JD
Porch
Entrance Hall
Downstairs Cloakroom
Lounge
13' 4'' x 11' 2'' (4.06m x 3.40m)
Dining Room
8' 6'' x 9' 4'' (2.59m x 2.84m)
Conservatory
7' 6'' x 13' 0'' (2.28m x 3.96m)
Kitchen
9' 4'' x 8' 5'' (2.84m x 2.56m)
Landing
Bedroom One
11' 10'' x 11' 3'' (3.60m x 3.43m)
Bedroom Two
10' 9'' x 11' 3'' (3.27m x 3.43m)
Bedroom Three
6' 6'' x 6' 6'' (1.98m x 1.98m)
Shower Room
7' 9'' x 5' 8'' (2.36m x 1.73m)
Outside
Ellesmere Port CH66 2JD
| Name | Location | Type | Distance |
|---|---|---|---|





