Merseyton Road, Ellesmere Port
Please enter your starting address in the form input below.
Please refresh the page if trying an alernate address.
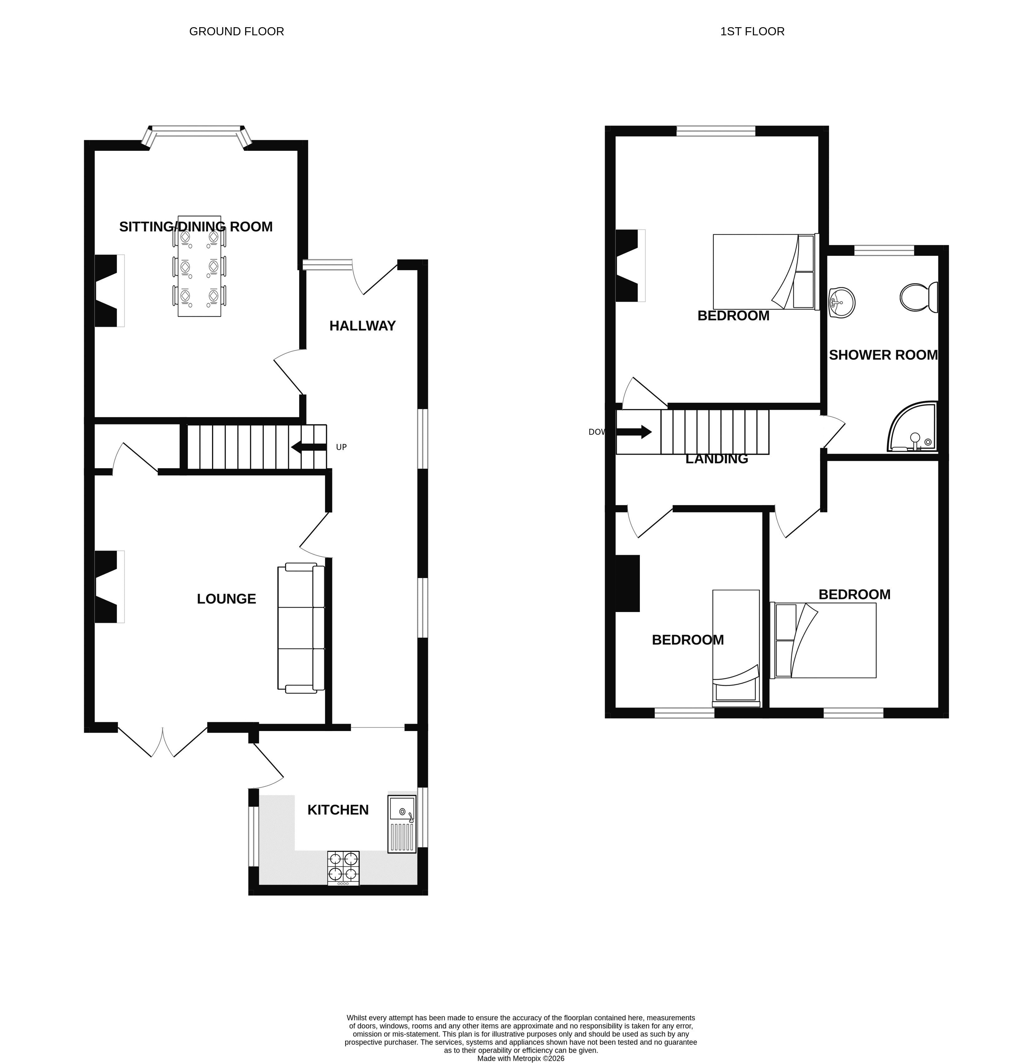
**NO CHAIN** This attractive home offers a wonderful blend of traditional features and comfortable living space. The ground floor boasts a spacious sitting/dining room featuring a gas stove, creating a warm and inviting atmosphere, alongside a separate lounge with a log burner (available by negotiation), perfect for cosy evenings. A well-proportioned kitchen completes the ground floor accommodation. To the rear, the property benefits from a private yard and a garage fitted with an electric door, providing secure parking or valuable storage space. Upstairs, the property offers three generous double bedrooms, a modern shower room, and a landing area, making it ideal for families or those seeking additional space. The property benefits from a new roof! Set in a highly convenient location with excellent transport links and easy access to everyday amenities, this characterful home combines charm, space, and practicality, making it a fantastic opportunity for a wide range of buyers
Ellesmere Port CH65 2AW
Entrance Hallway
Dining Room
11' 9'' x 15' 2'' (3.58m x 4.62m)
Living Room
13' 2'' x 13' 5'' (4.01m x 4.09m)
Kitchen
9' 4'' x 9' 0'' (2.84m x 2.74m)
Bedroom One
11' 9'' x 12' 6'' (3.58m x 3.81m)
Bedroom Two
8' 7'' x 13' 6'' (2.61m x 4.11m)
Bedroom Three
8' 7'' x 11' 0'' (2.61m x 3.35m)
Bathroom
5' 4'' x 8' 4'' (1.62m x 2.54m)
Ellesmere Port CH65 2AW
| Name | Location | Type | Distance |
|---|---|---|---|






