Mead Crescent Backford, Chester
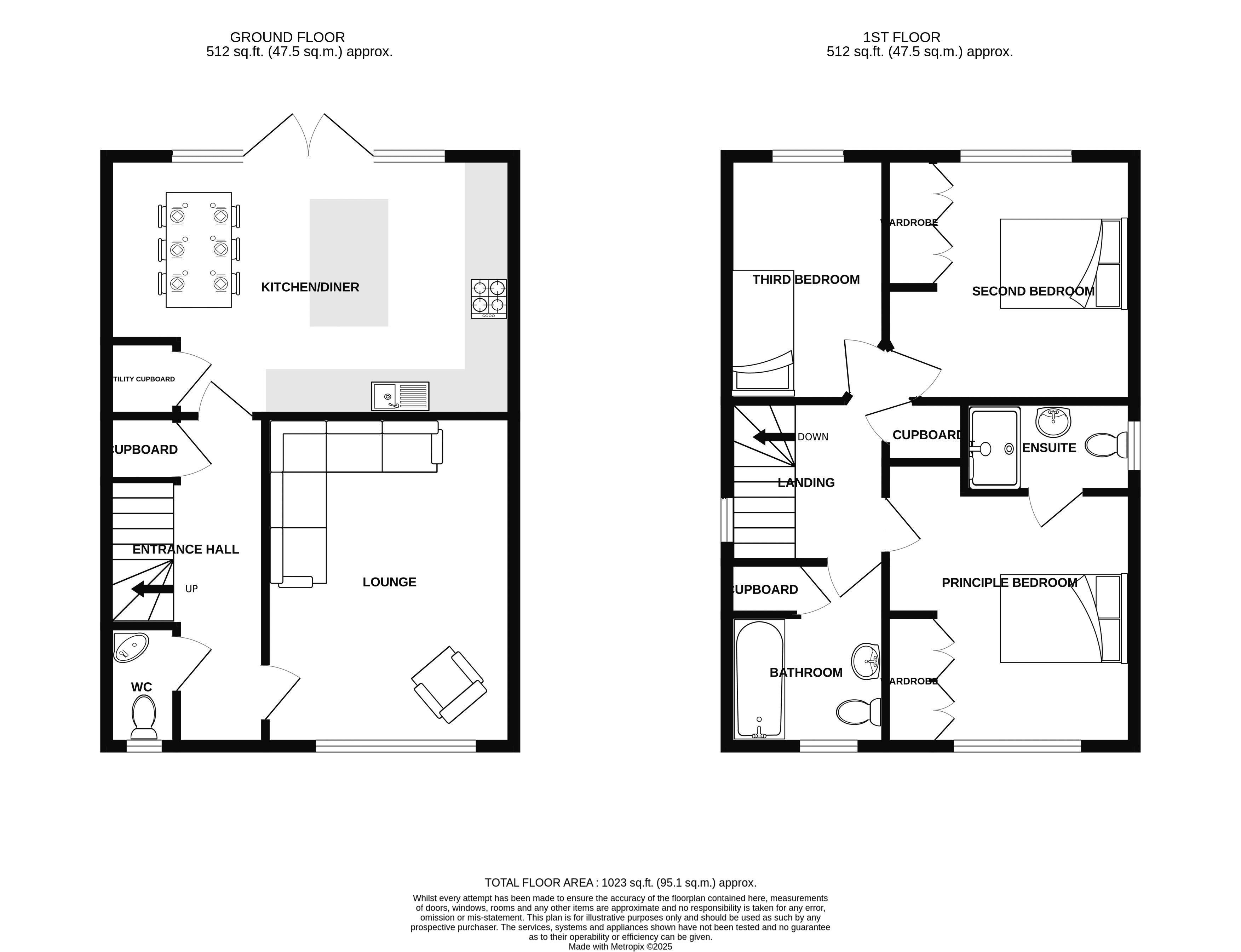
Platinum are delighted to offer onto the market this outstanding Redrow 'Warwick' design three bedroom detached family home. Situated within the highly sought after location of Backford near Chester, this fantastic property benefits from a modern open plan kitchen/diner, contemporary bathroom and boasts en-suite principle bedroom & a good size garden. Offering ideal living accommodation, the property briefly comprises: Entrance Hall, Downstairs Cloakroom, Lounge, Open Plan Kitchen/Diner, Landing, Three Bedrooms, En-Suite Principle Bedroom, Bathroom, Driveway and rear Garden.
Chester CH1 6PU
Entrance Hall
Downstairs Cloakroom
Lounge
15' 2'' x 11' 6'' (4.62m x 3.50m)
Kitchen/Diner
12' 6'' x 18' 9'' (3.81m x 5.71m)
Landing
Principle Bedroom
11' 8'' x 11' 6'' (3.55m x 3.50m)
En-Suite
4' 3'' x 8' 6'' (1.29m x 2.59m)
Second Bedroom
11' 4'' x 11' 4'' (3.45m x 3.45m)
Third Bedroom
11' 6'' x 7' 1'' (3.50m x 2.16m)
Bathroom
8' 7'' x 6' 8'' (2.61m x 2.03m)
Outside
Chester CH1 6PU






