Livingstone Road, Ellesmere Port
Please enter your starting address in the form input below.
Please refresh the page if trying an alernate address.
Request A Viewing
NO ONWARD CHAIN. Platinum are delighted to offer onto the market this two bedroom terrace house. This delightful property can be found within a popular location, benefiting from kitchen & bathroom and boasting UPVC double glazing and brilliant size rear garden. Offering ideal living accommodation, the property briefly comprises: Lounge, Kitchen, Bathroom, Two Bedrooms, and Rear Garden.
Ellesmere Port CH65 2BE
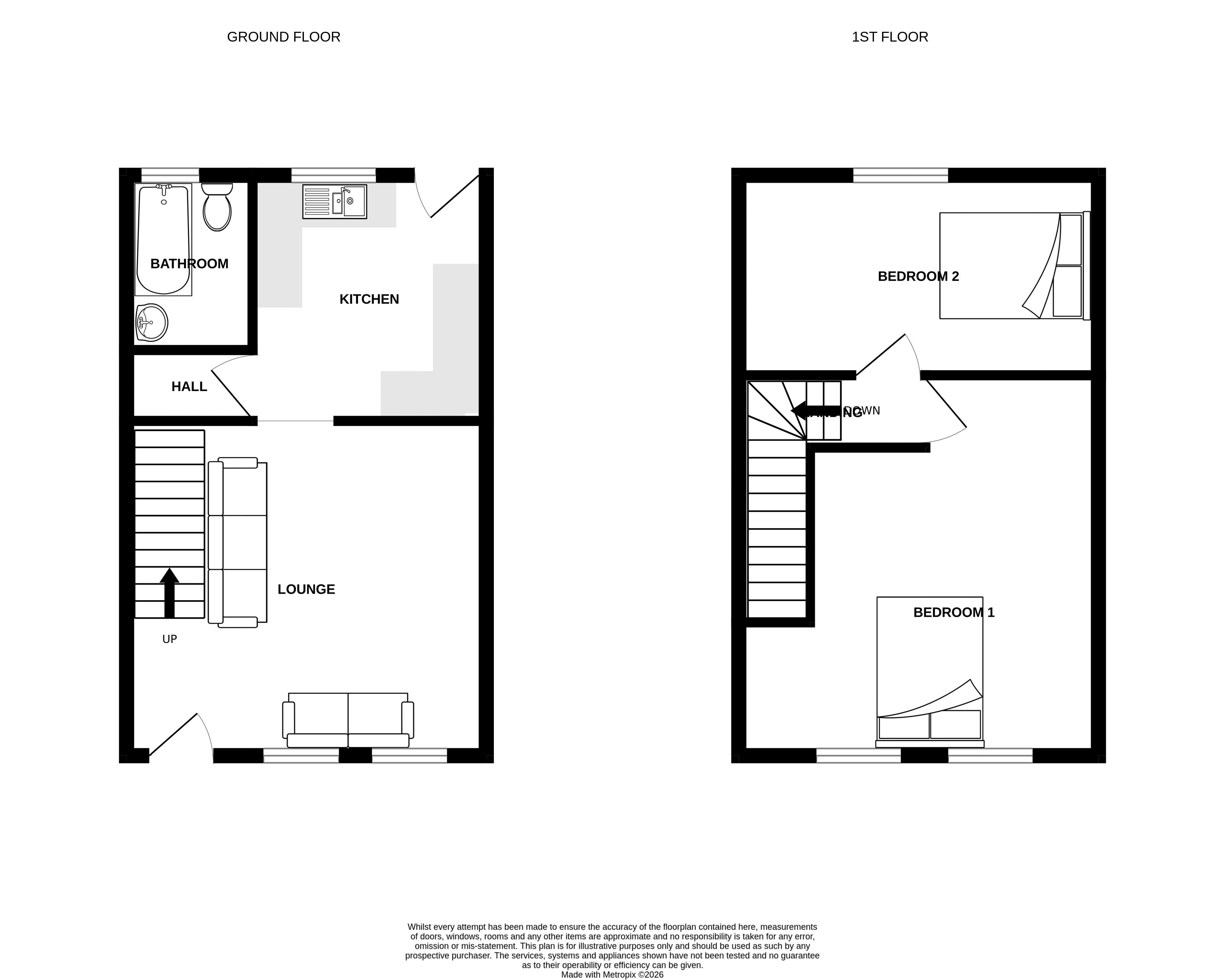
Lounge
11' 9'' x 14' 0'' (3.58m x 4.26m)
Kitchen
9' 3'' x 9' 7'' (2.82m x 2.92m)
Bathroom
7' 2'' x 4' 3'' (2.18m x 1.29m)
Bedroom One
13' 9'' x 11' 8'' (4.19m x 3.55m)
Bedroom Two
14' 0'' x 9' 7'' (4.26m x 2.92m)
Ellesmere Port CH65 2BE
| Name | Location | Type | Distance |
|---|---|---|---|





