Belgrave Drive, Ellesmere Port
Please enter your starting address in the form input below.
Please refresh the page if trying an alernate address.
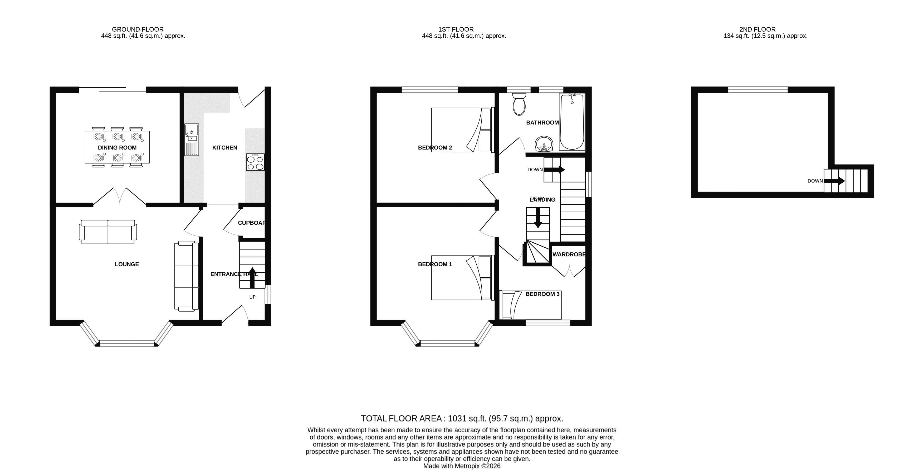
NO ONWARD CHAIN. Platinum are pleased to offer onto the market this fantastic three bedroom semi detached family home. Found within the sought after location of Great Sutton, the property benefits from a contemporary kitchen, combination boiler and boasts a good size garden & detached garage. Offering ideal living accommodation, the property briefly comprises: Entrance Hall, Lounge, Dining Room, Kitchen, Landing, Three Bedrooms, Bathroom, Loft Room, Artist in Concrete Driveway providing off road parking, Detached Garage and Rear Garden.
Ellesmere Port CH65 7EJ
Entrance Hall
Lounge
12' 4'' x 13' 6'' (3.76m x 4.11m) (max into bay window)
Dining Room
10' 9'' x 12' 4'' (3.27m x 3.76m)
Kitchen
10' 9'' x 7' 7'' (3.27m x 2.31m)
Landing
Bedroom One
12' 4'' x 11' 6'' (3.76m x 3.50m) (max into bay window)
Bedroom Two
10' 9'' x 11' 6'' (3.27m x 3.50m)
Bedroom Three
7' 6'' x 8' 9'' (2.28m x 2.66m) (max)
Bathroom
6' 1'' x 8' 9'' (1.85m x 2.66m)
Loft Room
9' 10'' x 13' 0'' (2.99m x 3.96m) (limited head space)
Outside
Ellesmere Port CH65 7EJ
| Name | Location | Type | Distance |
|---|---|---|---|






