Park Drive Whitby, Ellesmere Port
Please enter your starting address in the form input below.
Please refresh the page if trying an alernate address.
Request A Viewing
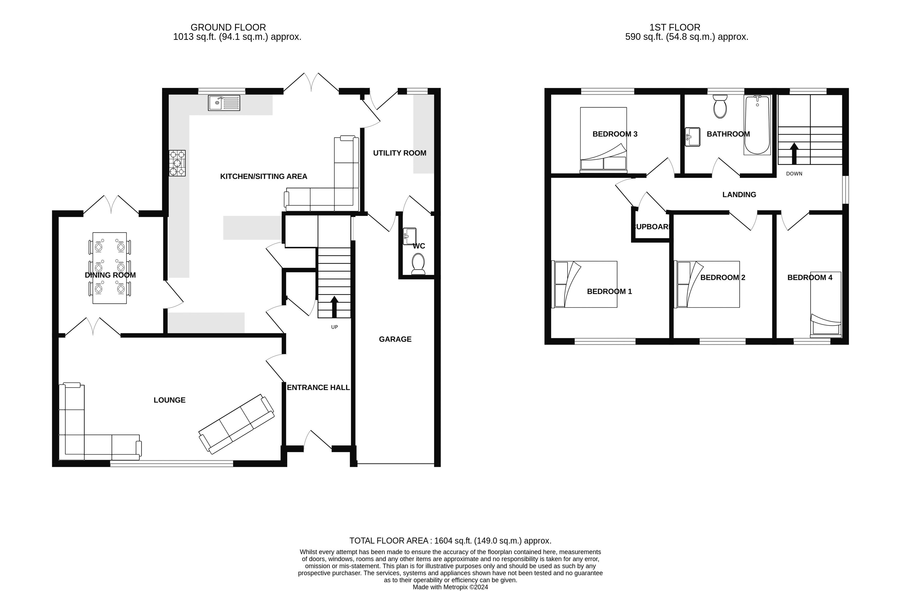
Platinum are delighted to offer onto the market this outstanding four bedroom detached family home. Situated within the highly sought after location of Whitby, this fantastic property benefits from a contemporary open plan kitchen/sitting area, stunning family bathroom and boasts utility room with cloakroom & good size garden. Offering superb living accommodation, the property briefly comprises: Spacious Entrance Hall, Lounge, Dining Room, Open Plan Kitchen/Sitting Area, Utility Room, Downstairs Cloakroom, Landing, Four Bedrooms, Bathroom, Driveway leading to Garage and Rear Garden.
Ellesmere Port CH65 6RA
Entrance Hall
Lounge
11' 5'' x 20' 4'' (3.48m x 6.19m)
Dining Room
9' 9'' x 10' 9'' (2.97m x 3.27m)
Kitchen/Sitting Area
21' 9'' x 17' 4'' (6.62m x 5.28m) (max 'L' shaped)
Utility Room
Downstairs Cloakroom
Landing
Bedroom One
15' 1'' x 11' 0'' (4.59m x 3.35m) (max)
Bedroom Two
11' 7'' x 9' 0'' (3.53m x 2.74m)
Bedroom Three
6' 9'' x 12' 0'' (2.06m x 3.65m)
Bedroom Four
11' 7'' x 6' 3'' (3.53m x 1.90m)
Bathroom
6' 0'' x 7' 0'' (1.83m x 2.13m)
Garage
22' 0'' x 7' 0'' (6.70m x 2.13m) (max)
Outside
Ellesmere Port CH65 6RA
| Name | Location | Type | Distance |
|---|---|---|---|





