Sycamore Drive Whitby, Ellesmere Port
Please enter your starting address in the form input below.
Please refresh the page if trying an alernate address.
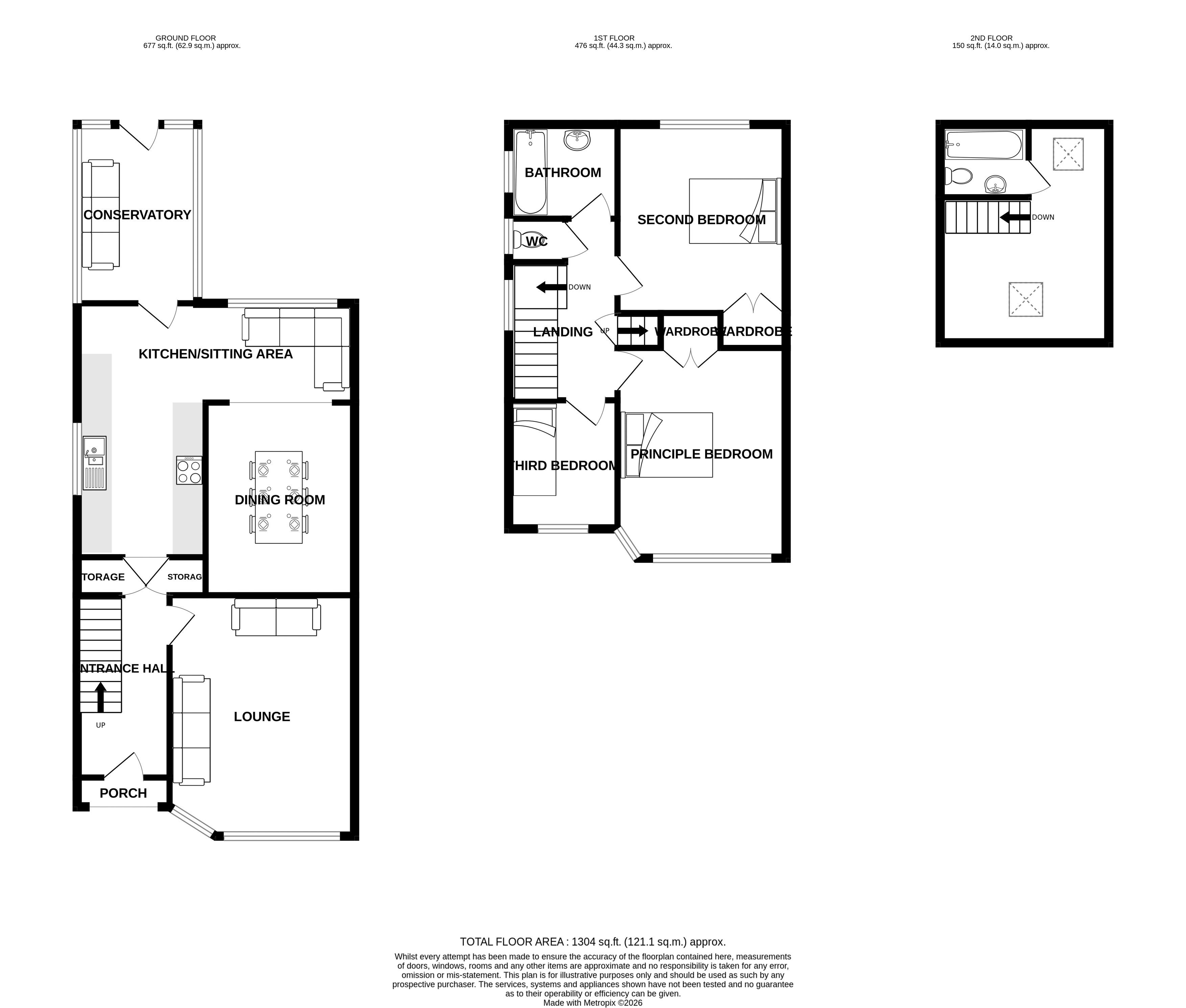
Platinum are pleased to offer onto the market this outstanding three bedroom semi detached house. Located on a corner plot within the highly sought after location of Whitby, this fantastic property benefits from being extended, a contemporary kitchen, detached garage and boasts three good size bedrooms. Offering ideal living accommodation, the property briefly comprises: Porch, Entrance Hall, Lounge, Kitchen, Sitting Area, Dining Room, Conservatory, Landing, Three Bedrooms, Bathroom, WC, Loft Room with En-Suite, Driveway, Detached Garage and front, side & rear Gardens.
Ellesmere Port CH66 2PW
Porch
Entrance Hall
Lounge
15' 2'' x 12' 4'' (4.62m x 3.76m) (max into bay window)
Kitchen
12' 4'' x 7' 9'' (3.76m x 2.36m)
Sitting Area
6' 0'' x 17' 7'' (1.83m x 5.36m)
Dining Room
12' 4'' x 10' 3'' (3.76m x 3.12m)
Conservatory
11' 8'' x 7' 4'' (3.55m x 2.23m)
Landing
Bedroom One
15' 2'' x 11' 2'' (4.62m x 3.40m) (max into bay window)
Bedroom Two
11' 3'' x 11' 2'' (3.43m x 3.40m)
Bedroom Three
9' 6'' x 7' 2'' (2.89m x 2.18m)
Bathroom
5' 9'' x 7' 0'' (1.75m x 2.13m)
WC
Loft Room
13' 9'' x 11' 6'' (4.19m x 3.50m) (max)
En-Suite
4' 4'' x 5' 7'' (1.32m x 1.70m)
Outside
Ellesmere Port CH66 2PW
| Name | Location | Type | Distance |
|---|---|---|---|






